Overview

  • House - Detached
  • Property Type
  • 4
  • Bedrooms
  • 2
  • Bathrooms

Description

SOLD – Scott Parry Associates are pleased to report another successful sale.

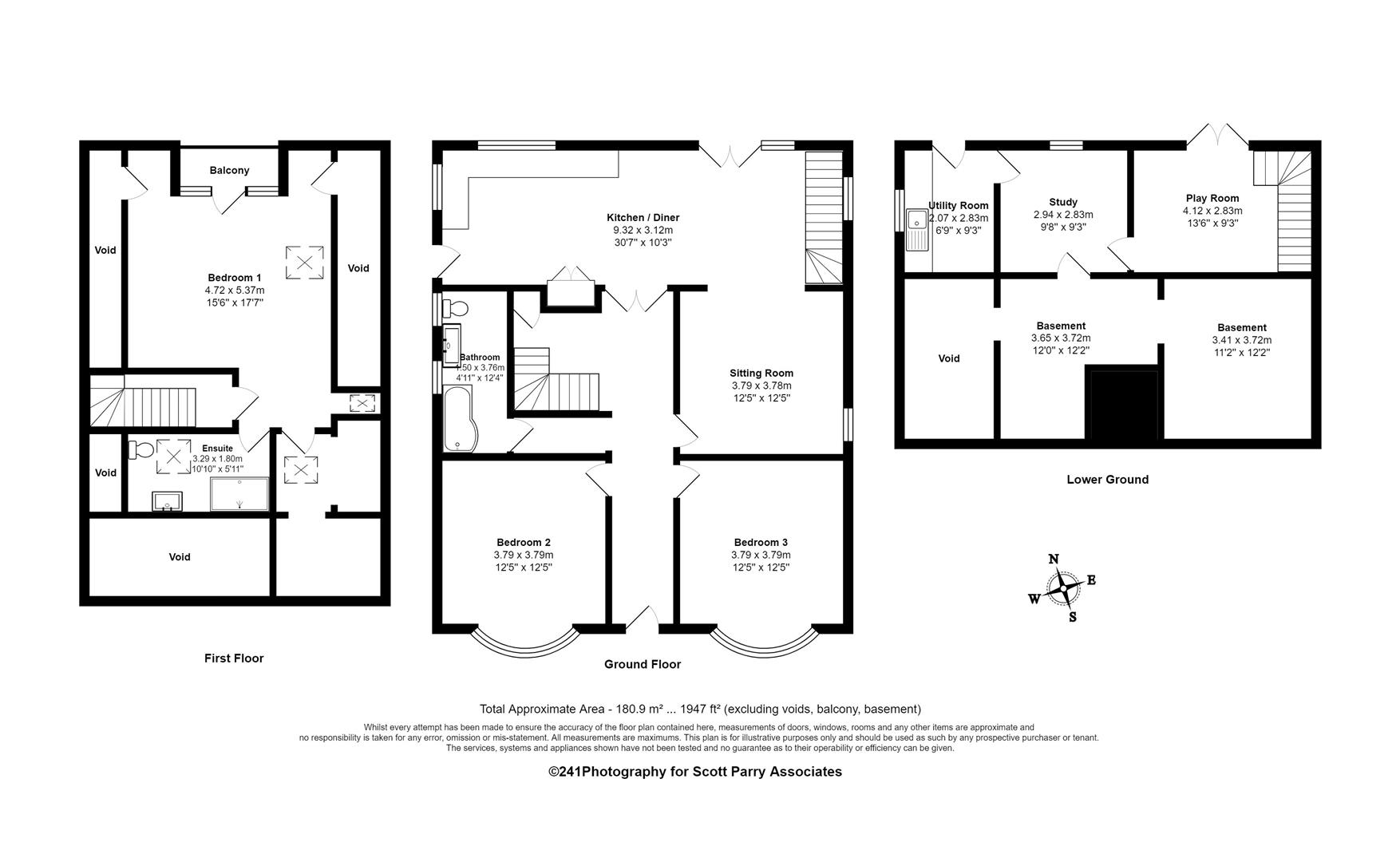
SOLD – Scott Parry Associates are pleased to report another successful sale – A detached contemporary house with awe inspiring views over the tidal waters of the River Tamar and the glorious unspoilt countryside of the Tamar Valley AONB, having a versatile layout and potential annexe, in a prized residential setting within walking distance of Saltash Waterfront. About 1947 sq ft, Reception Hall, Sitting Room, 30′ Kitchen/Dining Room, 18′ Luxury Master Bedroom Suite with Balcony, Dressing Room and Ensuite Shower Room, 2 Further Double Bedrooms, Modern Bath/Shower Room, Garden Room/Bed 4, Study, Laundry Room/WC, Cellar of about 280 sq ft, Large Gardens with Summer House, Ample Parking.

WATERFRONT 750 YARDS, TOWN CENTRE 200 YARDS, PLYMOUTH 5 MILES, WHITSAND BAY 12 MILES

LOCATION
Saltash has a wide range of shops, schools, a main line railway station and various other facilities including a sports and leisure centre and fascinating long water frontage to the River Tamar with a popular sailing club, gig rowing club, deep water moorings and excellent boat launching facilities including a public slipway. St Mellion International Golf Resort is within easy driving distance and The fabulous China Fleet Country Club with its 18 hole parkland like golf course, health and beauty spa and many other facilities lies only 1 mile from the property. In addition to the extensive amenities in the town of Saltash itself, a Waitrose store lies on its northern outskirts and Plymouth is readily accessible via the A38 again providing wide ranging facilities including a ferryport with regular services to France and Northern Spain and main line railway station (Plymouth to London Paddington 3 hours).

In 2006 the Tamar Valley was given World Heritage Status, an extensive array of wildlife habitats can be found in the steep gorges, meandering rivers, ancient woodlands and wetlands and the area is home to a number of rare plants, animals and birds. The scenic and beautiful rolling countryside of this area and its mild climate are favoured by horticulturists.

DESCRIPTION
11 Hillside Road comprises a detached house presented to a stunning contemporary standard and providing spacious and versatile accommodation over three floors to provide a superb family home. The principal rooms take advantage of the fabulous views over the River Tamar and rolling countryside of the Tamar Valley.

There is the potential for the lower ground floor to be adapted to provide an annexe or self contained guest suite (subject to any consents that may be required). The property benefits from mains gas central heating and full double glazing.

The accommodation extends to about 1947 sq ft and briefly comprises – GROUND FLOOR – Reception Hall – 30′ Kitchen/Dining Room with triple aspect and Juliet Balcony capitalising on the super views this room is open plan to the 12″ Sitting Room providing excellent entertaining and family space – 2 Double Bedrooms both with wide Bay windows and plantation shutters – Beautiful Modern Bath/Shower Room – FIRST FLOOR – 18′ Luxury Master Bedroom Suite with integral Canopied Balcony, Walk-in Wardrobe/Dressing Room and Ensuite Shower Room/WC – LOWER GROUND FLOOR – Garden Room/Bedroom 4 – Study – Cellar/Basement Store (280 sq ft) providing further potential – Laundry Room with WC.

OUTSIDE
From Hillside Road the property has a private driveway providing parking for at least two cars with lawned garden adjacent.

A further long and private drive from Deer Park Road provides an excellent parking amenity with space for motorhome, caravan or boat etc.

The enclosed rear garden has a fabulous aspect over the Tamar Valley, Tamar River and the foothills of Dartmoor beyond. The garden is low maintenance with level lawn and patio area with Summer House (by Gudrum) 4.38m x 2.75m and Garden Shed.

EPC RATING – E, COUNCIL TAX BAND – E
SERVICES – Mains water, electricity, drainage and gas.

DIRECTIONS
Using Sat Nav – Postcode – PL12 6EX

Property Documents

ZU7fqCuhQk66Ss550fkTjw.pdf
  • Address Hillside Road, Saltash, Cornwall
  • City Saltash
  • State/county Cornwall
  • Zip/Postal Code PL12 6EX

Details

Updated on May 13, 2026 at 8:24 pm
  • Price: Price Guide £525,000
  • Bedrooms: 4
  • Bathrooms: 2
  • Property Type: House - Detached
  • Property Status: Sold

Features

Floor Plans

image

Description:

Video

Similar Listings

Contact Information

Enquire About This Property

Compare listings

Compare

Pin It on Pinterest