Trematon, Near Saltash

  • £485,000
Trematon, Near Saltash

Overview

  • Bungalow - Detached
  • Property Type
  • 3
  • Bedrooms
  • 2
  • Bathrooms

Description

SOLD – Scott Parry Associates are pleased to report another successful sale. ONLY ONE LEFT!!

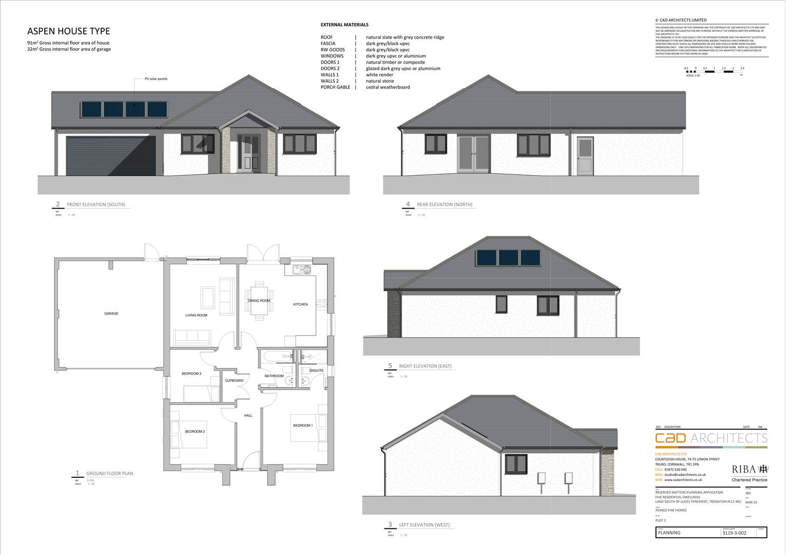
SOLD – Scott Parry Associates are pleased to report another successful sale – ONLY ONE REMAINING – BE QUICK! – ADJACENT TO THE TAMAR VALLEY AREA OF OUTSTANDING NATURAL BEAUTY AND ONLY 2 MILES FROM FORDER CREEK – An exclusive development of just five individual detached bungalows on generous and level plots by a local developer renowned for delivering first class homes in enviable settings. PLOT 2 – The Sorrel – 979 sq ft (91 sqm). Solar PV. EV Charger. Driveway and Double Garage. High Quality Specification. Construction has commenced and the property is available for reservation now. 1, The Campion – SOLD, 4, The Celandine – SOLD, 5, The Yarrow – SOLD.

FORDER CREEK 2 MILES, SALTASH 2 MILES, PLYMOUTH 9 MILES, EXETER 52 MILES, WHITSAND BAY 10 MILES

DESCRIPTION
Lowarth Grove comprises a small and exclusive development of just five bungalows each on generous and level plots. The Sorrel is a new home designed to provide comfortable living accommodation with energy saving features including double glazing, air source heat pump serving underfloor heating, solar pv and an ev charger with a Predicted Energy Assessment rating of A.

PLOT 2 – RESERVED – A south facing corner plot with driveway parking and generous plot. The accommodation extends to about 979 sq ft or 91 sq m and will briefly comprise – Canopy Porch – Reception Hall – Dual Aspect Kitchen/Dining Room with French doors to garden – Sitting Room – Principal Bedroom with Ensuite Shower Room/WC – 2 Further Bedrooms – Family Bathroom having bath with shower over.

The Double Garage has an up and over door and pedestrian door to rear. Front garden – turfed, Rear Garden with Paved Patio and ample space for the creation of a wonderful level garden enclosed by traditional hedging on two sides.

The Kitchen – U-Shaped kitchen with fitted soft closing wall and base units and Duropal worktop and matching up stand. Under unit LED lighting. Integrated appliances to include fridge/freezer, induction hob with concealed extractor above and stainless steel splashback and stainless steel tall electric double fan oven, dishwasher and washing machine. One and half bowl stainless steel sink unit with drainer. Tiled flooring.

LOCATION
The picturesque rural hamlet of Trematon lies only 2 miles from the waterside hamlets of Forder and Antony Passage both of which adjoin the wide tidal Lynher River estuary. This is a waterway frequented by a variety of pleasure craft with Plymouth Sound just over 4 miles distant by boat and the River Tamar navigable for about 10 miles upstream.

Trematon is a charming hamlet only 2 miles from the superb riverside town of Saltash.

The nearby hamlet of Forder lies in a Conservation Area at the head of a tidal inlet of the Lynher River with moorings available by application to the Forder Community and Conservation Association. Saltash and Cargreen both have yacht clubs with sheltered deep water moorings. Set within a sheltered wooded valley the unspoilt hamlets of Trehan and Forder enjoy immediate access to open countryside including the Churchtown Farm Nature Reserve with a wide network of footpaths in the vicinity. Golf is available at the St Mellion International Golf Resort or the China Fleet Country Club.

Easy access is gained to Saltash’s bustling town centre, the main line railway station (Plymouth to London Paddington 3 hours) and the Waitrose store on its northern outskirts. The A38 provides easy access to Truro in the west and Plymouth or Exeter in the east. The wide expanse of Dartmoor and Bodmin Moor provide boundless leisure opportunities and are both within a short drive. The location is rich in natural flora and fauna, combining to create an area extremely popular with yachting and outdoor enthusiasts alike.

PEA RATING – A, COUNCIL TAX BAND – TBC
SERVICES – Mains water, electricity and drainage. Broadband – Ultrafast available. Mobile Coverage – Indoor – Likely, Outdoor – Likely.

DIRECTIONS
Using Sat Nav – Postcode PL12 4RU

NOTE
Particulars include CGI visuals for the street scene and lifestyle images of the locality including The St Mellion International Golf Resort, Saltash Waterfront, Whitsand Bay, Forder Creek and the River Lynher, Looe Beach and the Banjo Pier.

Property Documents

yTbpR_OKf0Sj6ptYTwzjDA.pdf
  • Address 2 Kelli Lowarth, Trematon, Saltash
  • City Saltash
  • Zip/Postal Code PL12 4FJ
  • Area Trematon

Details

Updated on May 13, 2026 at 9:24 pm
  • Price: £485,000
  • Bedrooms: 3
  • Bathrooms: 2
  • Property Type: Bungalow - Detached
  • Property Status: Sold

Features

Floor Plans

image

Description:

Similar Listings

Contact Information

Enquire About This Property

Compare listings

Compare

Pin It on Pinterest